Carisma Hotell – fläktkonvektor CRSL-ECM 14+1
4-radigt vattenbatteri och 4-rörssystem
Driftsbegränsningar
Högsta inloppstemperatur + 85° C
Lägsta inloppstemperatur + 5° C
Högsta rumstemperatur + 40° C
Lägsta rumstemperatur + 5° C
Högsta arbetstryck 1000 kPa (10 bar)
Elmatning 230V, 50Hz, max 10A
Flödesbegränsningar
Lägsta flöde 50 l/h
Högsta flöde 350 l/h

Komponenter i Carisma Hotell
1. Insugningsgaller med filter • GRAFG-C
Insugningsgallret är gjort av natureloxerad aluminium. I gallret finns ett EU2 grovfilter som skyddar mot smuts och damm.
2. Insugningskanal 90°
Efter gallret kommer en 90° vinklad insugningskanal. Kanalen är ljudisolerad. Den bygger 152 mm nedanför själva aggregatet, men kan kapas till önskad längd, anpassat till undertaket.
3. Insugningsljuddämpare • BRS-A
Insugningsljuddämparen är gjord av galvaniserad stålplåt. Den är invändigt ljudisolerad med en förstärkt glasullmatta, 50 mm tjock och med 30 kg/m³ densitet.
4. Fläktkonvektorn är en CRSL-ECM 14+1. Den är byggd kring ett chassi i 1 mm elförzinkad stålplåt, kondensisolerad med polyolefinmatta (klass M1).
Fläktenheten har dubbelsugande centrifugalfläktar. Fläktmotorn är en energisnål EC-modell för 230 V/1. Den har permanentsmorda lager och är monterad i vibrationsdämpande upphängningar.
Vattenbatteriet för kyla är 4-radigt, med ett 1-radigt extrabatteri för värme. Dessa är tillverkade av kopparrör med aluminiumflänsar. Batterierna uppfyller PN16 (16 bar) och temperatur 6 – 85°C.
Carisma Hotell har ett kondensisolerat kondenstråg. Det är förberett för kondensavledning åt valfritt håll. Som standard sitter det på samma sida som vattenanslutningen, dvs. på vänster sida. Vill man leda ut kondensatet åt andra hållet är det enkelt att skifta sida. Vi rekommenderar att även komplettera med ett yttre kondenstråg (se tillbehör) för att ta hand om ev. kondens vid vattenanslutningen.
5. Utblåsningsljuddämpare • BXS-A
Utblåsningsljuddämparen är gjord av galvaniserad stålplåt. Invändigt är den ljud- och kondensisolerad med en förstärkt glasullmatta, 50 mm tjock och med 30 kg/m³ densitet.
6. Utblåsningskanal med tilluftsanslutning
Utblåsningskanalen är rak och leder luften rakt in i hotellrummet. Den har en 80 mm stos för tilluft från ventilationssystemet, inget separat don behövs. Luften kommer in via tilluftsgallret och blandas med den behandlade luften. Som standard finns tilluftsanslutningen på motsatt sida mot vattenanslutningen, men den går att placera på samma sida som vattenanslutningen.
7. Utblåsningsgaller • BMA-C
Utblåsningsgallret har dubbla justerbara lameller. Genom att rikta lamellerna kan luftriktningen justeras i både höjd- och sidled. Gallret är gjort av anodiserad aluminium.
För uppsamling av kondens från ventiler och anslutningar kan vi rekommendera att komplettera med ett extra kondenstråg (se Tillbehör).
Carisma Hotell byggs in i taket, ovan undertak. Installerad och klar kommer endast gallren vid insug och utlopp att synas i hotellrummet.
Ljudet från aggregatet är i grunden lågt. Det dämpas ytterligare av undertakets isolering. Vad gäller placering rekommenderar vi ändå att aggregatet placeras över hotellrummets hall, utanför toaletten. Ljudet från luftintaget kan då höras diskret i hallen men stör inte i vistelsezonen. Vid utblåsningsgallret – varifrån luften flödar in mot själva hotellrummet – är ljudpåverkan minimal.
Vattenanslutning: Som standard är vattenanslutningen placerad på vänster sida och elanslutningen på höger sida. Aggregatet kan i stället levereras med vattenanslutningen på höger sida, då placeras elanslutningen på vänster sida. Vattenanslutningen har en 1/2″ invändig anslutning. På samma sida som vattenanslutningen finns ett kondensavlopp (Ø 15 mm). Även detta kan enkelt skiftas vid behov.
Vattenbatteriet har luftskruvar.
Carisma Hotell styr du med en 0–10V signal från önskad reglerenhet. Du kan välja mellan flera olika lösningar på reglering. Utgå från vilka krav och önskemål som finns i det specifika projektet. Enkel individuell styrning, närvarostyrning eller central styrning är några av de alternativ vi erbjuder. Reglerenheter som passar är t.ex. förprogrammerade rumsregulatorerna FCR3 och FCR4, reglerpanelen WMAU eller WMSECM. De är alla väggmonterade.
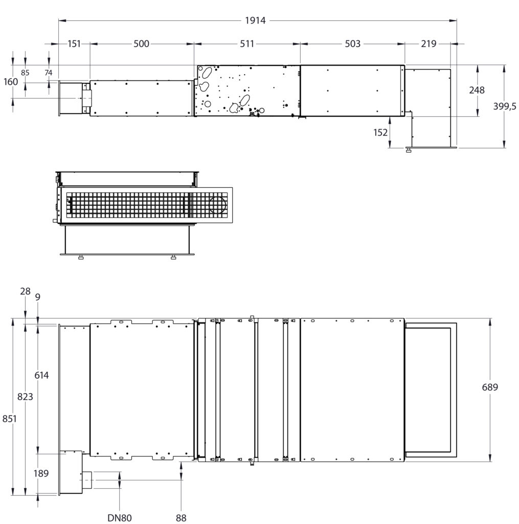
Dimensioner för Carisma Hotell

Den översta måttskissen visar Carisma Hotell från sidan. Luftriktningen är från insug till utblås, i bilden från höger till vänster (som i bilden under Komponenter).
Den mindre skissen i mitten visar utblåssidan. Som standard finns vattenanslutningen på vänster sida, så även i bilden.
Illustrationen nederst visar Carisma Hotell underifrån.
Längder i mm. Total vikt 51 kg.
Dimension på tilluftskanalen är 80 mm. Utvändig diameter på kondensutloppet är 15 mm.
Information & Manualer
Deklarationer & Certifikat
Tillbehör
Du kanske också gillar …
-

Reglerpanel WMAU
- Behovsstyrd fläkthastighet
- Omkopplare för sommar/vinter
- Reglerar 1 ventil vid 2-rörssystem
- Reglerar 2 ventiler vid 4-rörssystem
- Passar fläktkonvektorer
-

Rumsregulator FCR3
- Förprogrammerad rumsregulator
- För fläktkonvektorer med EC-fläkt
- Snabb och säker konfigurering
- Matningsspänning 230V
- Kan kommunicera via RS485
- Enkel installation
-

Rumsregulator FCR4
- Förprogrammerad rumsregulator
- För fläktkonvektorer med EC-fläkt
- Snabb och säker konfigurering
- Matningsspänning 24V
- Kan kommunicera via RS485
- Enkel installation
-

Spänningsenhet UPAU
- Till fläktkonvektorer utan MB styrenhet
- Kombinera med TMB2 eller WMAU
- Master/Slav drift
- Kan driva upp till 10 st. konvektorer
-

Temperaturregulator WMSECM
- 230V reglering för EC-motor/fläkt
- Behovsstyrd fläkthastighet
- 0–10 V signal för hastighetsreglering
- Energisparfunktion
-

Ventilsats FVIM och FVIN
- On/Off-ställdon
- Tyst reglering
- Inga tryckstötar
- Injusteringsventil
- Mätnipplar ingår
-

Ventilsats FVV
- 2-vägs ventilsats
- Består av ställdon och reglerventil
- Tyst reglering
- Finns i olika dimensioner
- Inga tryckstötar
Hej! Mina kollegor och jag hjälper dig gärna om du har frågor kring produkter, priser och beställningar. Vi hjälper dig även gärna med förslag på värmelösningar.
| För oss på Eveco är det viktigt att ta hänsyn till miljön. Vi arbetar för en hållbar utveckling och tar hänsyn till kommande generationer. Läs mer i vår Miljöpolicy! |




